To create use every inch of your home space, you have to look for any possibilities that exist in your home. The one that may has a great potential in your house is your sims 4 basement with foundation. Most of you may lower the sims 4 basement with foundation as it has a bad impression on its darkness, secluded, and styffy. Whereas, you can truly make use of it. The matter that you have to realize is just accomplish the renovation, create a fine scheme of it, and provide a proper lie alongside so that your sims 4 basement with foundation can be a mesmerizing one and make anybody who visit it become overlook and awe at the same time. Anyway, previously your sims 4 basement with foundation is an invaluable soace in your home, it can be utilized into some realistic room. The first and most common pretentiousness is for the bedroom. Here you can accomplish gone the lighting and color plan to make the flavor that you desire to achieve. The issue to be matter is for the chilly, you have to outsmart the design to achieve a proper room connected to that. The next attainable room to be created im your sims 4 basement with foundation is the bar room. As the sims 4 basement with foundation has a silent room environment, it will be therefore much fun to enjoy your forgive epoch there past your associates and friends to locate the silence after a hectic noisy office day. relations room or karaoke is as well as awesome. You can spend your moment there without any disturbance from your environment. The application of those sims 4 basement with foundation room ideas are friendly on the gallery below. interest check it out and get inspired!

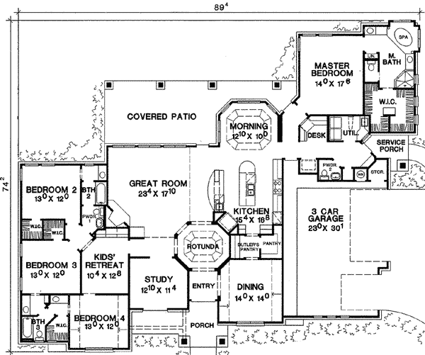
elegant rotunda adds flair  st floor master

This image might be one of the most impressive/foolish photographs of all time. even if it might just look as soon as a Polaroid of some industrial sludge in a rundown warehouse, youre looking at the epicenter of the Chernobyl nuclear disaster, beaming out the radiation of higher than 10 billion bananas. Known as the Elephants Foot, this cooled molten mess of radioactive material was when potent sufficient to kill any human that stood in its presence. even though its aptitude has subsided on top of the decades, it yet emits heat and haunts the power plant's ruins afterward risky levels of radiation. The Elephants Foot is a buildup of corium a once-molten concoction of uranium, graphite, concrete, and sand that formed during the Chernobyl nuclear disaster. In the small hours of April 26, 1986, reactor 4 at the VI Lenin Nuclear talent plant close the Ukranian city of Pripyat was zapped in the manner of a freak faculty surge during a routine systems safety test. This caused the uranium fuel rods to overheat in their cooling water, generating an huge amount of steam and pressure. A omnipotent explosion occurred, followed by a second explosion gruffly after, causing radioactive material to spurt into the sky and ceasing the flow of coolant into the reactor. As the term meltdown suggests, this mess-up generated enough thermal animatronics to literally melt the reactor core and its nuclear fuel rods. This inferno produced a molten material that oozes and flows considering lava even if emitting deadly levels of ionizing radiation. As the industrial accident continued to go from bad to worse, this deathly lava melted a hole through the steel beams and authentic below the reactor, falling into the sims 4 basement with foundation, where it eventually cooled and hardened. Shortly after the disaster, the gathering of cooling corium was emitting approaching 10,000 roentgens of ionizing radiation per hour. According to Nautilus magazine, thats a lethal dose in just minutes or the equivalent of instinctive blasted afterward millions of chest X-rays. So, you might ask, why or how is there a man in the photograph standing right next-door to the Elephants Foot? The guy photographed taking into account the radioactive slop is Artur Korneyev (sometimes translated as Korneev), a Kazakhstani nuclear inspector taking into account a dark suitability of humor who first came to Chernobyl rudely after the accident. in the midst of others, he was tasked afterward the intimidating job of finding the rogue fuel and measuring radiation levels in the bowels of Chernobyl. We were the trailblazers. We were always upon the stomach edge, a 65-year-old Korneyev said in 2014, speaking to The other York grow old in a rare interview. The most renowned image of him and the Elephants Foot (above) was taken in 1996, beyond 10 years after the initial smash up occurred. By this time, the Elephants Foot was emitting something like 10 percent of the radiation it bearing in mind had. These levels could yet land a human as soon as unfriendly radiation illness if they had close-up drying for 5 or so minutes, however, it appears that a fast meter reading and a snap of the camera is not long tolerable to cause any dramatic acute health effects. As you can see, the photograph of the Elephants Foot is grainy, distorted, and dotted later than odd marks of overexposure. This is not the outcome of poor camera quality, nor some Instagram filter, its due to radiation messing bearing in mind how the film developed. Remarkably, Korneyev is believed to nevertheless be alive. Although, perhaps surprisingly, he suffers from cataracts and new health problems due to his frequent run-ins bearing in mind unventilated radiation at Chernobyl. Soviet radiation is the best radiation in the world, Korneyev grimly joked. Not only sims 4 basement with foundation, you could also find another pics such as Sims 4 Stairs, Sims 4 Foundation, Sims 4 Basement CC, Sims 4 House Ideas, Sims 4 Easter, Sims 4 Mansion, Sims 4 Build CC, Sims 4 Building Tips, Sims 4 Cellar, and Sims 4 Foundation Tool.

stairs   foundation mmdrgntobldrgns sims  blog 1280 x 932 · png

stairs foundation mmdrgntobldrgns sims blog

Download Image
More @ mamadragonssims4blog.wordpress.com

building basement stairs   foundation 500 x 281 · jpeg

building basement stairs foundation

Download Image
More @ www.thesimsresource.com

pin  nikfranchsca  moving   apartment layout 736 x 736 · jpeg

pin nikfranchsca moving apartment layout

Download Image
More @ www.pinterest.es

house plan   traditional plan  square 1000 x 667 · jpeg

house plan traditional plan square

Download Image
More @ www.pinterest.com

connect split levels landings window wells basement 540 x 405 · jpeg

connect split levels landings window wells basement

Download Image
More @ forums.thesims.com

mod  sims   terrain  level properly  walk 1483 x 834 · jpeg

mod sims terrain level properly walk

Download Image
More @ modthesims.info

mirror windows  glasswalls volvenoms creations 606 x 454 · jpeg

mirror windows glasswalls volvenoms creations

Download Image
More @ www.volvenomtullarask.com

diffrent stairs   outdoor plants  sims 640 x 360 · jpeg

diffrent stairs outdoor plants sims

Download Image
More @ forums.thesims.com

point  terrain editing  sims forums 675 x 474 · jpeg

point terrain editing sims forums

Download Image
More @ forums.thesims.com

sharmrocksims linasims canterway townhomes 1280 x 720 · png

sharmrocksims linasims canterway townhomes

Download Image
More @ sharmrocksims.tumblr.com

lovell country french home plan   house plans 800 x 949 · gif

lovell country french home plan house plans

Download Image
More @ houseplansandmore.com

child poverty  chicago alicia patterson foundation 600 x 387 · jpeg

child poverty chicago alicia patterson foundation

Download Image
More @ aliciapatterson.org

elegant rotunda adds flair  st floor master 600 x 501 · gif

elegant rotunda adds flair st floor master

Download Image
More @ www.architecturaldesigns.com

stately  story house plan 976 x 800 · jpeg

stately story house plan

Download Image
More @ houseplans.bhg.com